
Status: Active
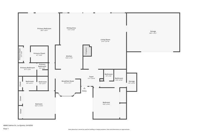
Welcome to your Ultimate Desert Sanctuary with Spectacular Mountain & Fairway Views Perfectly positioned to capture the absolute best of the Coachella Valley, this home enjoys a desirable south-facing orientation that bathes every room in natural light. Expansive mountain vistas create a dramatic backdrop to the pristine fairways just beyond your door, offering a truly priceless panorama. Nestled in a private and tranquil cul-de-sac, this stunning desert retreat embodies resort-style living at its finest. Just steps from the sparkling community pool, the home's thoughtful layout is designed around comfort and privacy, featuring three spacious suites--including a generous primary retreat and two additional private ensuite bedrooms, ideal for guests.Expansive glass sliders seamlessly merge indoor and outdoor living, flooding the open-concept floor plan with natural light and sweeping panoramic views. Vaulted, wood-beamed ceilings, a granite-accented fireplace, and an inviting wet bar combine to create an ambiance of refined comfort and effortless entertaining.The gourmet kitchen is a true chef's haven, showcasing granite countertops, counter height seating, handcrafted maple cabinetry, double ovens, and a five-burner gas cooktop--all thoughtfully designed for both beauty and performance. A charming breakfast nook provides an inviting space to enjoy casual meals or a quiet morning coffee in comfort. The formal dining room captures panoramic sunset views, making every meal a special occasion.Experience the essence of desert living from the moment you step outside--whether gathering in the front courtyard with its built-in BBQ and seating area or the expansive back patio with multiple seating areas, creating the perfect setting for sunset cocktails or cozy evenings beneath the desert sky.Additional highlights include a two-car garage plus a golf cart garage with direct golf course access. Whether you are entertaining, relaxing, or simply savoring the serenity, this property offers a rare blend of sophistication, warmth, and natural beauty--a true desert sanctuary designed for luxurious living. Come see why we LOVE this home!!!!