
Status: Active
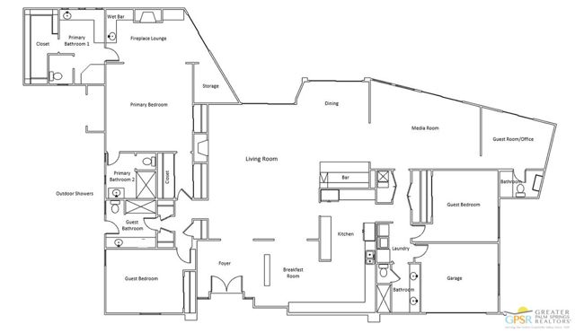
Recently featured in Palm Springs Life Magazine and The New York Times, and chosen for the 2025 Modernism Week Signature Home Tour, this mid-century modern gem is situated in South Palm Springs' highly sought-after Indian Canyons neighborhood. Built in 1963 as a model home and thoughtfully expanded, it now spans nearly 4,000 square feet on a spacious 1/3-acre lot bordering the Indian Canyons Golf Course. Over the last four years, it has been updated to highlight sweeping mountain views and seamless indoor-outdoor living. Sold turnkey-furnished with a few minor exceptions, the interiors feature a dramatic entry, open living area, built-in bar, and a wall of sliding glass doors to the backyard. The reimagined chef's kitchen includes custom cabinetry, designer tile, and premium Dacor and Miele appliances. Recent upgrades include three HVAC systems, dual-pane windows, an updated electrical panel, automatic window shades, plus vibrant paint and wallpaper. Outdoor enhancements include two fire pits, a pergola dining area, a built-in BBQ, an outdoor shower, a freshly re-plastered pool, a new foam-coated roof, and lush landscaping. With room for a casita or extra garage, and golf cart parking, this home blends classic design with modern ease.