
Status: Active
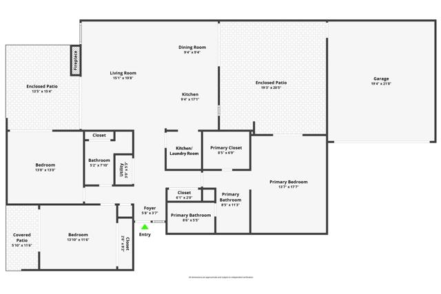
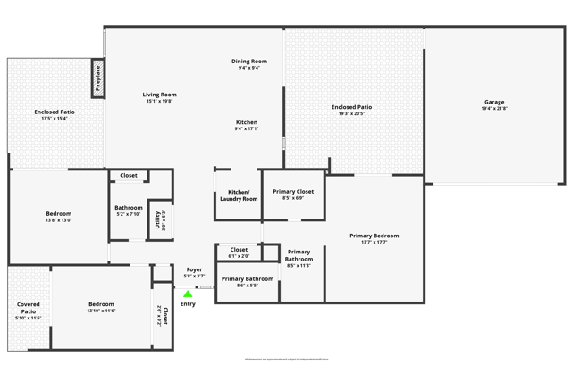
This Hugh Kaptur designed condo is a true 3 bedroom 2 bath with an attached 2 car garage. Designed around a large interior patio this unique concept allows for in-home outside entertaining with complete privacy! Situated in one of the most desirable areas of the complex, this condo exudes a welcoming neighborhood vibe! Inside you will find an open floor plan with high vaulted ceilings and walls of glass allowing the soft flow of light throughout your main living areas. Updated kitchen with a large island, high end appliances and tons of cabinet space. A neutral style tile is continuous throughout the entire home that engenders an expansive flow from room to room. The spacious Primary Suite with room for a cozy sitting area with direct access to your outdoor patio. Primary bathroom has a double vanity and walk-in shower. Two guest bedrooms are on the opposite side of the home that share a central bathroom. There is a 2nd large patio that is perfect for morning coffee or basking in the desert sun. Saddlerock Gardens is a boutique complex of 43 patio homes with 2 pool/spas and 2 tennis courts. Low HOA that covers building, grounds and cable tv. Worryfree style living that is walking distance to restaurants, shopping and coffee houses.