
Status: Active
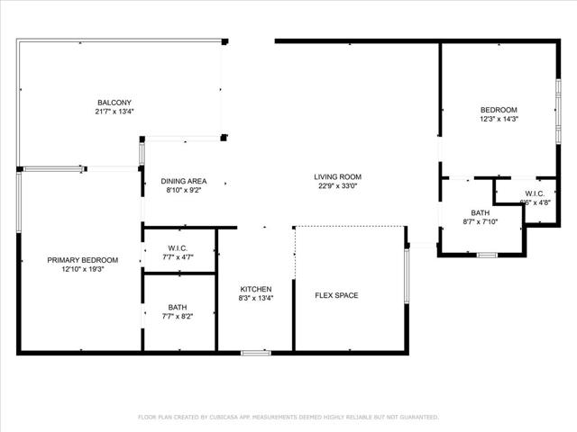
Welcome to the exclusive hillside enclave of Rimcrest, a stunning retreat where mid-century modern charm meets breathtaking panoramic views above Palm Springs. Built in 1967 and designed by Leroy Rose & Harold Carlson this rare freestanding detached condo offers the privacy of a single-family home with the ease of resort-style living. Spanning 1,600 square feet, this beautifully remodeled 2-bedroom, 2-bathroom residence also features a versatile flex space perfect for a home office, den, or bedroom for additional guests, easily made private with original refurbished shoji screens. Stylish updates include new eco-friendly cork flooring, designer-tiled bathrooms, and a sleek galley kitchen with new custom cabinetry and lighting. Step onto your expansive patio, an entertainer's dream, where you can soak in the mesmerizing desert landscape. And when it's time to unwind, a sparkling community pool and spa are just steps away. Furnishings available outside of escrow. Don't miss this rare opportunity to own a slice of Palm Springs paradise!