
Status: Active
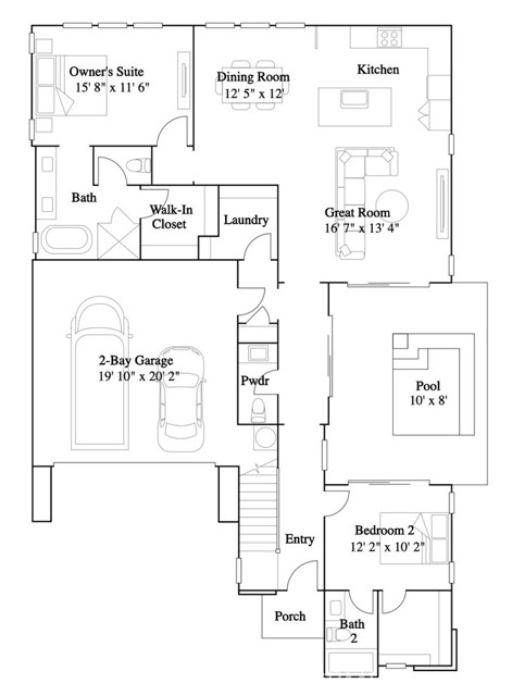
NEW CONSTRUCTION! Includes upgraded flooring! This new two-story home encourages intimate outdoor experiences with a relaxing swimming pool. A first-floor owner’s suite provides a serene retreat with a full bathroom and walk-in closet, near a spacious and flexible open-concept floorplan where the kitchen, living and dining areas meet. New home includes a one bedroom casita with full bathroom. On the second floor, a convenient office offers a secluded work space near a versatile loft and additional bedroom. The kitchen features miami vena quartz countertops. Canyon View is a new community of single-family homes for sale in Palm Springs, CA. Residents will enjoy access to an onsite park and an array of shopping, dining and entertainment options in downtown Palm Springs, just five miles away. Plan a fun-filled weekend trip to Agua Caliente Casino for upscale gaming and entertainment, or head out to one of the several local golf courses to work on your game.