
Status: Active
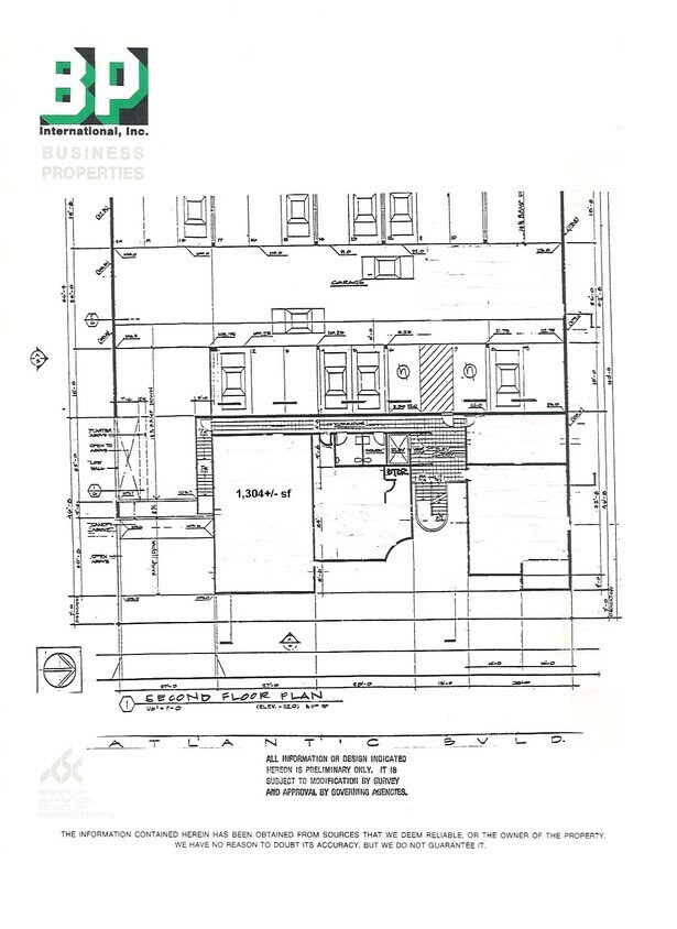
809 S. Atlantic Blvd presents an owner-user commercial opportunity in Monterey Park consisting of a ±11,766 square foot, three-story building situated on a ±15,000 square foot lot. The property includes nine units and is improved with elevator service, fire sprinklers, and individual electrical meters. Parking is well in excess of typical requirements, featuring 43 on-site spaces with an approximately 3.65:1 parking ratio, with each floor having its own dedicated parking level. Zoned Commercial/Professional (C-P) and constructed in 1999, the property is currently 100% leased with short-term lease agreements, providing near-term flexibility for an owner-user while benefiting from stable medical and professional tenancy. The asset is well suited for a medical, professional office, or service-oriented owner-user seeking a long-term operating location in a dense, supply-constrained San Gabriel Valley market.