
Status: Active
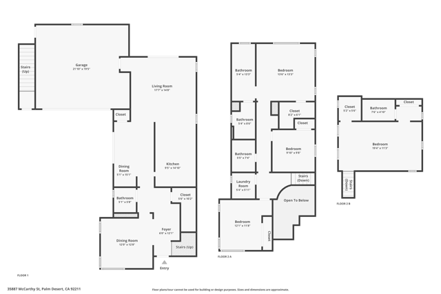
Contemporary Design Meets Investment PotentialWelcome to this stunning 2022-built residence in University Park, Palm Desert's premier master-planned community. This meticulously maintained home showcases the perfect blend of modern architecture, custom finishes, and a game-changing attached ADU that transforms your investment while enhancing your lifestyle.Dual Living Spaces, Endless PossibilitiesThe attached ADU with separate entrance delivers proven rental income--College of the Desert students have paid $1,500/month, creating a smart mortgage offset. Use it as guest accommodations, multigenerational living space, creative studio, or continue the rental success. This versatile design adds both functionality and financial advantage.Custom Elegance & Mountain VistasFresh custom paint throughout elevates the home's contemporary aesthetic. An expansive open floor plan with dramatic high ceilings creates a bright, welcoming atmosphere complemented by stunning mountain views. The gourmet kitchen impresses with premium quartz countertops, stainless appliances, gas cooktop, double oven, and abundant storage--a true entertainer's dream.The builder's premium landscaping package transforms the backyard into your private desert oasis, perfect for outdoor dining and relaxation under the desert sky.University Park's crown jewel is The Grove--an exclusive 3.36-acre resort-style recreational center featuring dual pools and spas, modern fitness facilities, pickleball and bocce courts, clubhouse with gathering spaces, BBQ areas, fire pits, community gardens, three neighborhood parks, dog park, and meandering walking trails. This is resort living without resort fees.Smart Location, Smarter InvestmentIdeally situated near major universities including Cal State San Bernardino, UC Riverside Palm Desert, and College of the Desert. Minutes to shopping, restaurants, the upcoming regional sports complex, and I-10 freeway access for effortless valley-wide connectivity.University Park's low HOA delivers exceptional value--accessing premium amenities while keeping monthly expenses remarkably low.Turnkey & Ready to PerformThis like-new home is immaculately maintained and move-in ready. From custom paint to mountain views to income-producing ADU, every element is designed for modern desert living with financial benefits.Welcome to University Park--where contemporary style, community amenities, and investment opportunity create your ideal Palm Desert home.