
Status: Active
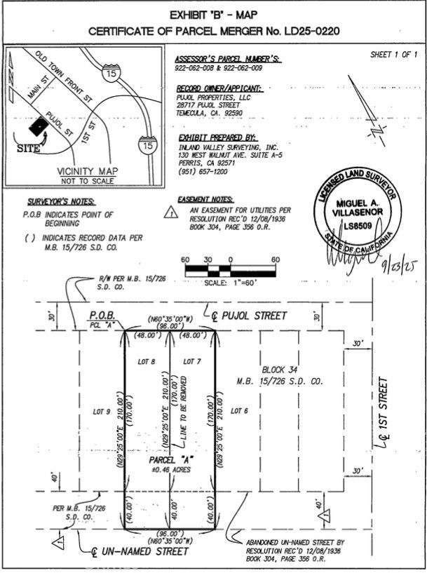
**Land Development with Entitled Plans for a Multifamily!!** **RTI April 2026 **Offered as an entitled development opportunity ideal for experienced multifamily developers Approved for 50% density bonus allowing 9 units extra. Low income component for 3 units Approved plans for a 28-unit apartment project consisting of 26 units plus 2 ADUs Zoned SP-5 (Old Town Temecula Specific Plans) for residential development at a high density of 20-35 dwelling units per acre. Site size of approximately 20,160 SF with ~20,475 SF of rentable residential area Unit mix includes studios, one-, two-, and three-bedroom residences All entitlements in place, including zoning approval, parcel merger, site plan approval, and approved historic home relocation Located within walking distance to Old Town dining, retail, and entertainment Strong rental demand supported by population and income growth Limited new multifamily supply anticipated beyond 2025 Convenient access to I-15, Inland Empire, and San Diego employment corridors