
Status: Active
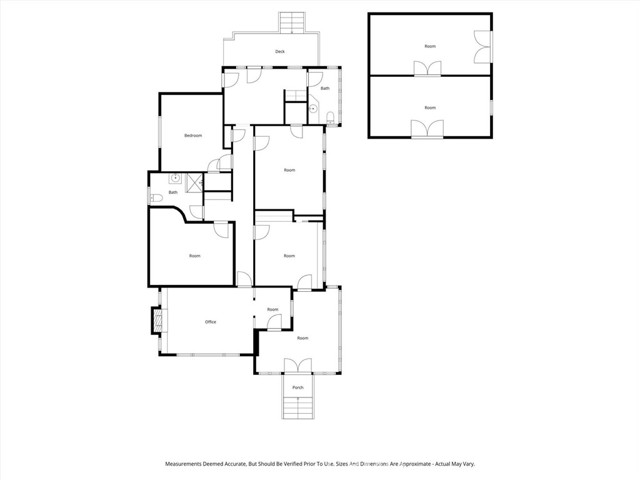
Located at 1022 Mill Street, this well-positioned mixed-use commercial property originally a residence converted to a commercial office in 1996 presents a compelling opportunity for investors and owner-users alike, offering flexible office configurations, on-site parking, a separate rear unit, and an outdoor patio area—all within walking distance to the San Luis Obispo County Courthouse. Its central location near downtown San Luis Obispo, Highway 101, and major professional corridors makes it highly desirable for legal, professional, and service-oriented tenants. The main building features five private offices arranged in a functional and efficient layout, ideal for legal practices, professional services, medical or wellness use, or creative office environments. Two bathrooms support staff and client use, while the flexible floor plan allows for future reconfiguration to meet evolving tenant or owner-user needs. A separate unit at the rear of the property enhances the investment profile by offering the potential for multiple income streams, additional leasable space, or private workspace for an owner-user, subject to zoning and use approvals. The separation of structures supports mixed-use functionality while maintaining privacy between uses. An outdoor patio area provides a rare and valuable amenity for an office property, offering space for breaks, informal meetings, or outdoor use that enhances tenant appeal and workplace quality. Combined with on-site parking, this feature strengthens tenant retention and overall marketability in a high-demand location. With its walk-to-courthouse location, mixed-use potential, flexible office layouts, separate rear unit, outdoor patio, and parking, 1022 Mill Street represents a strong opportunity for an investor seeking a stable commercial asset with upside potential, or an owner-user looking to offset occupancy costs through additional rental income in one of San Luis Obispo’s most sought-after professional districts.