
Status: Active
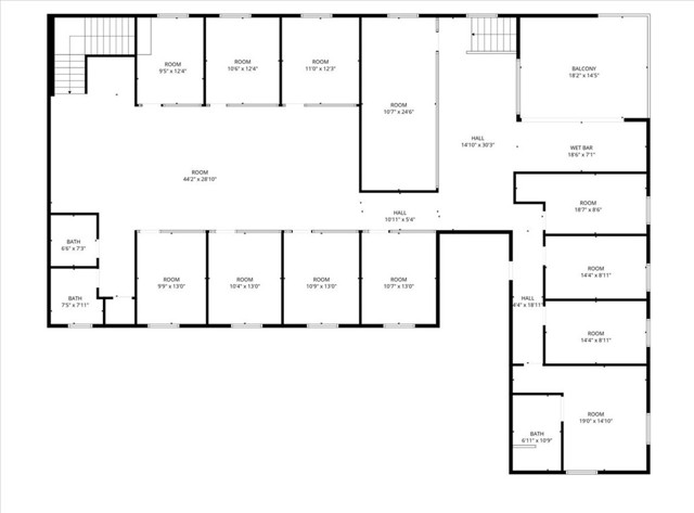
Welcome To 3444 E Anaheim St, A Spacious 5,900 Sq Ft Commercial Property In The Heart Of Long Beach’s Eastside, Where Opportunity And Convenience Seamlessly Blend. This Property Features A Versatile, Open Layout With Ample Room For Offices, Meeting Spaces, And Storage, Designed To Accommodate A Wide Range Of Business Operations. Large Windows Allow Natural Light To Flood The Interior, Creating A Bright And Welcoming Atmosphere. The Building's Exterior Includes Well-Maintained Landscaping, Covered Entryways, And Plenty Of Parking For Clients And Staff. The Prime Location Offers Easy Access To Major Roads And Is Just Minutes Away From California State University Long Beach, Making It An Ideal Spot For Businesses Looking To Attract Foot Traffic. This Property Is More Than Just A Place To Work; It’s A Place To Grow, Surrounded By The Energy And Potential Of Long Beach’s Vibrant Business Community.