
Status: Active
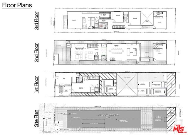
Exceptional fully entitled oceanfront ground-up opportunity to develop a three-story mixed-use coastal property featuring luxury residential living above ground-floor commercial. This represents the only new construction opportunity on Ocean Front Walk in years, offering rare city-approved plans and a meaningful entitlement advantage in one of Los Angeles' most supply-constrained beachfront corridors. The approved design includes approximately 450 square feet of ground-floor commercial space, ideal for boutique retail, gallery, or office use with unmatched boardwalk exposure and foot traffic. Above, plans call for an expansive 4,700 square foot single-family residence, thoughtfully designed with multiple private patios and sweeping panoramic ocean views. Architectural plans and finish packages are complete and ready for immediate execution, allowing construction to commence without delay. Designed by Reed Architectural Group, an award-winning Venice-based firm, the project seamlessly blends contemporary coastal architecture with functional live-work flexibility. Ideally located just steps from Abbot Kinney Boulevard, Main Street, and Rose Avenue, this offering presents a rare opportunity for an owner-user, investor, or developer to create a truly iconic oceanfront property in the heart of Venice.