
Status: Active
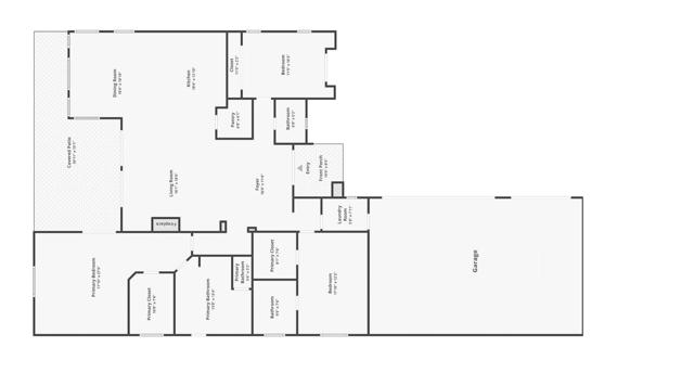
Escape to your own private paradise in this stunning Rancho Mirage retreat, tucked inside the ultra-exclusive gated enclave of White Sun Estates, home to just 52 residences. Spanning approximately 2,407 square feet, this beautifully appointed three-bedroom, three-bathroom home sits on an expansive, approximately 10,454-square-foot lot, offering space, privacy, and effortless desert elegance.The spacious primary suite is a true sanctuary, designed for serene comfort and relaxation. It features a generous walk-in closet with a kitchenette for seclusion when needed. Ideal for both everyday living and entertaining, the home flows seamlessly to the outdoors, where your personal resort awaits. Enjoy a sparkling saltwater pool with cascading spa, framed by breathtaking mountain views that create a dramatic and tranquil backdrop. A covered patio provides generous shade, ideal for al fresco dining, lounging, and entertaining under the desert sky.Located in the highly desirable southern Rancho Mirage area, this home combines luxury with exceptional value, featuring a low HOA of just $149/month. Whether you're seeking a full-time residence or a desert getaway, this is refined desert living at its finest. Don't miss the opportunity to own your slice of paradise.No open houses are scheduled. Please call for appointment.