
Status: Active
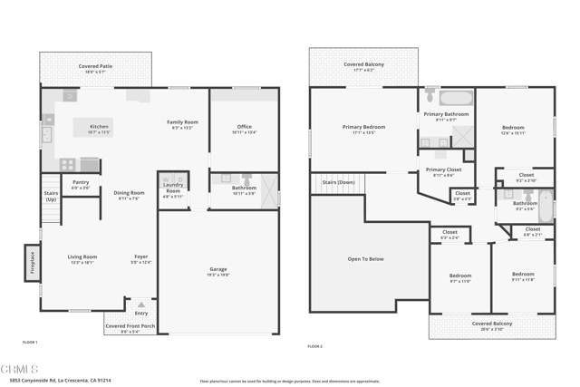
A rare blend of space, privacy, and modern efficiency in the heart of Briggs Terrace. Built in 2004 and extensively remodeled, this nearly 2,700-square-foot home offers 4 bedrooms, 3 bathrooms, and a dedicated office that can easily serve as a fifth bedroom or guest suite.The main level is designed for both comfort and connection. A beautifully reimagined kitchen features a large center island with seating, generous cabinetry, stainless steel appliances, and French doors that open to the backyard--perfect for indoor-outdoor living. The kitchen flows into the family room and dining area, while a separate living room with vaulted ceilings and a decorative fireplace provides a welcoming space for gatherings or quiet evenings at home. Imported Aspenwood Arctic porcelain tile and custom plantation shutters add a clean, cohesive finish throughout the main level.Upstairs, the spacious primary suite offers a private retreat with a custom walk-in closet, a balcony overlooking the backyard, views of Downtown Los Angeles, and a fully remodeled full bathroom. Three additional bedrooms and a full bath complete the upper level, with newly installed carpeting throughout the upstairs and office.The home is thoughtfully equipped for modern living with owned rooftop solar panels, a Tesla battery system for energy storage and backup power, and a 220V EV charging outlet in the attached two-car garage. Outdoors, the property offers privacy, versatility and easy maintenance. In addition to mature Tangelo, Asian Pear, Peach, Avocado, Orange, and Lemon trees, the backyard includes a separate shed with electricity--ideal as an artist's retreat, podcast or recording room, man cave or she-shed. With mountain views, energy-efficient systems, and a flexible layout, this home delivers comfort, creativity, and convenience in a quiet neighborhood setting.Located near the award winning La Crescenta schools, shopping, freeways, DTLA and the studios, make this your next home!