
Status: Active
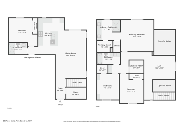
Welcome to this former model home in the gated community of Spanish Walk in Palm Desert, offering the perfect blend of style, comfort, and location. Built in 2017, this 4-bedroom, 3-bath residence features 1,771 square feet of bright, open living space designed for modern living.The open-concept floor plan is filled with natural light from numerous windows and complemented by tile flooring throughout the main living areas for a clean, modern feel. The kitchen opens seamlessly to the living and dining areas and features granite countertops, white cabinetry, stainless steel appliances, and builder upgrades, creating an inviting space for everyday living and entertaining. Upstairs and downstairs living spaces offer flexibility for guests, work-from-home needs, or growing households.Step outside to a private backyard with lush landscaping, beautiful citrus trees, and a built-in BBQ, perfect for relaxing or entertaining.Located in the highly desirable Spanish Walk community, residents enjoy low HOA dues and resort-style amenitiesincluding multiple pools and spas, a fitness center, billiards room, parks, and walking paths. Ideally situated near shopping, dining, and Acrisure Arena, with convenient access to El Paseo and Palm Springs, this move-in ready home offers modern construction, desirable community amenities, and an unbeatable Palm Desert location.