
Status: Active
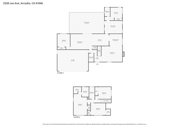
Located on a peaceful street, this lovely traditional home offers 4 Bedrooms, 3 Bathrooms, plus an additional suite, with an outside entrance, which is perfect for an extended family member. Enhanced with sidelights, front entry door opens to large, light filled living room with fireplace, and adjoining Dining Area. Upgraded kitchen with Kraft Maid custom cabinetry, quartz countertops, stainless steel appliances, and an abundance of overhead lighting. The peninsula separating the kitchen and family room serves as a breakfast bar. The Family Room, which has an additional fireplace, with built-in bookcase, opens to a covered patio with fishpond & fountain. Flooring in downstairs traffic areas is luxury vinyl planking for easy maintenance. There is also a downstairs bedroom/office with nearby hall bathroom. The upstairs bedrooms include a large primary bedroom with walk-in closet and a private bathroom. Two secondary bedrooms are served by a hall bathroom. The Granny Suite was added to the house in 2005. It is attached to the main house and can serve as additional living area, or by locking a door, it can becomes an independent living area with its own outside entrance. It has a dedicated HVAC system and tankless hot water heater. The sitting area has a kitchenette, plus there is a bedroom and bathroom with step-in shower. Behind wrought iron gates, there is a concrete slab in the side yard which lends itself to additional parking and/or storage. For privacy, the backyard perimeter is screened by trees, many of which are fruit bearing. Recent significant upgrades include new HVAC system for the main house, and seismic retrofit upgrades. The house is also wired for fiber optics.