
Status: Active
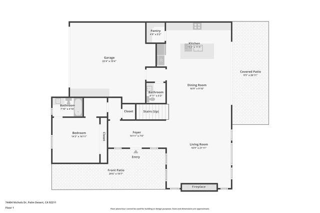
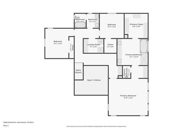
This stunning turnkey resort style home offers panoramic views and exceptional upgrades throughout. The premium Palm Desert view residence has been enhanced with over $150,000 in interior and exterior improvements, blending modern luxury with effortless desert living. The 2,700 square foot home sits on a rare 10,000 square foot elevated corner lot, providing sweeping 365 degree valley and mountain views from nearly every window. Inside, the home features new flooring, gourmet cabinetry, automatic blinds, sheer curtains, a custom TV station with an under island fireplace, upgraded garage cabinetry, a Tesla charging station, and owned solar. The spacious layout includes four bedrooms and three and a half highlighted by a private guest suite with its own en suite bath. Outdoors, the resort experience continues with a private putting green and thoughtfully placed concrete step pathways that enhance the flow and functionality of the outdoor living space.