
Status: Active
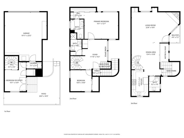
Tucked away on a quiet, non-through street just two blocks from the sand, this beautifully updated, completely detached townhome lives like a single-family home, without the $3M+ price tag. It offers that rare South Hermosa sweet spot where beach life feels a little more like a local secret without the hustle and bustle. Inside, natural light pours through skylights and windows, highlighting airy lofted ceilings, clean & beachy finishes, and an easy, move-right-in vibe. The open living area flows to an ocean-peek deck, while a private yard adds the kind of indoor-outdoor hangout space (and pet-friendly bonus) that’s hard to find this close to the beach. The updated kitchen features white shaker cabinetry, quartz counters, and a modern ocean-inspired backsplash, while updated baths and durable luxury vinyl wood flooring keep things stylish and low-maintenance. Need a home office? This home has TWO flexible home office options. The primary suite is generously sized with a long closet and refreshed bath featuring a double vanity and sandy-soft inspired tile. Add in a 2-car garage with storage for beach gear, boards and bikes, and you’re set for an active lifestyle just moments from the Strand, local surf spots, volleyball courts, gyms and neighborhood favorites for coffee, dining, and drinks. If you’ve been waiting for something that feels a little different, in all the right ways, this is the one to experience in person. VIDEOS COMING SOON. PLEASE CHECK BACK!